Outline permission was granted for 1,500 homes to the East of Wantage in 2015.
This site should also deliver a primary school, a community centre, sports fields and pavilion as well as the Wantage Eastern Relief Road (for which £7.71m of the £15m cost is a grant from the Government which was supposed to be used before the end of 2021.)
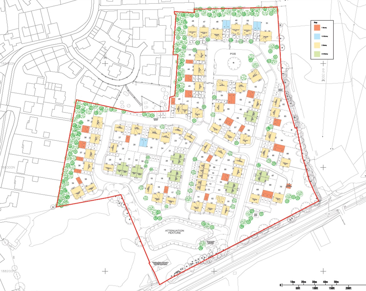
Phase 1B required a strategic change to the overall design strategy as it increased the density and the height of new homes on the edge of the development nearest existing properties. This required a separate planning application; P19/V1269/FUL
Phase 4 Centre East is the newest phase to be planned. Taylor Wimpey will be building 171 dwellings and providing some public open space. For details see P20/V2756/RM.
Full permission for the first 70 homes (Phase 1A) was granted in Nov 2017 (P17/V1499/RM)

Phase 1B - 102 homes was approved in Oct 2019 (P19/V0565/RM)

The triggers for delivery of the infrastructure within the site are shown here: Infrastructure triggers
Phase 3a (South East A) 82 homes near the A417 was approved Jan 2019 see P18/V2227/RM.

Phase 2 (Centre West) 174 homes was approved Mar 2019 see P18/V2992/RM.

The Primary School is north of Centre West and the first pupils started in September 2020.
see P18/V2971/RM.
Phase 3b (South East B) 121 homes near the By-Pass was approved Feb 2022 see P21/V1265/RM.

Phase 4 (Centre East) 171 homes was approved June 2021 see P20/V2756/RM.

The Care Home is north of Centre West and was approved Feb 2022.
see P21/V2040/RM.
For details from the developer see kingsgrovewantage.co.uk.
See our Wantage and Grove Map for detailed locations.